By via the City of Auburn | March 21
A block diagram of the potential site of a development on North College Street.
A block diagram of the potential site of a development on North College Street.
The proposed amendment to the height limit in the College Edge Overlay District that has led to heated debate.
A conceptual master plan for the commercial development near Donahue Ridge in Auburn, Ala.
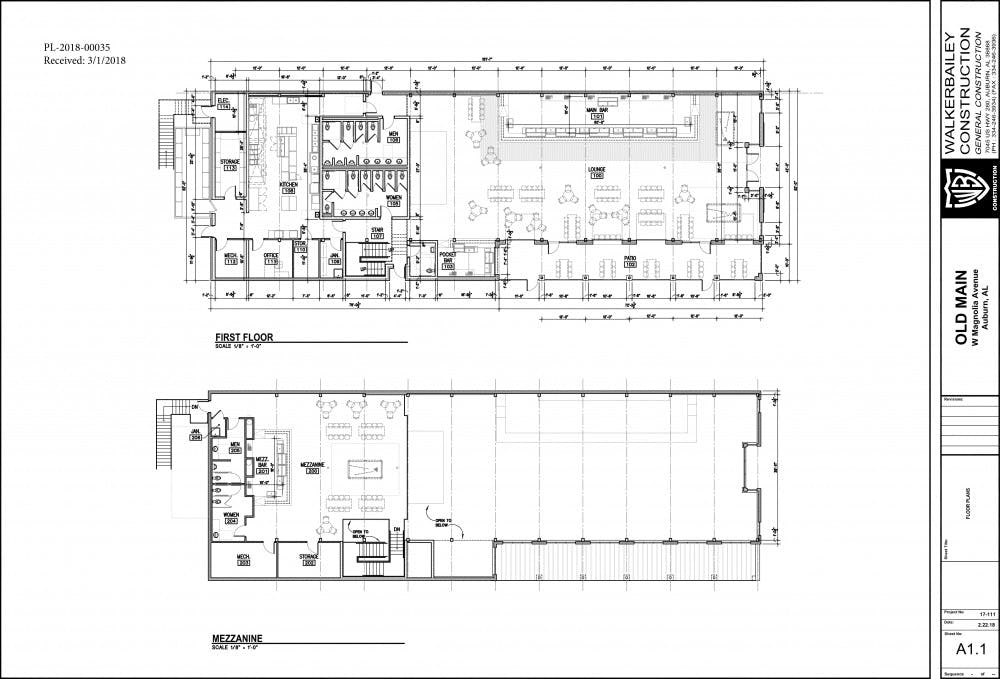
A working floorplan for the Old Main, a lounge to be located on West Magnolia Avenue in Auburn, Ala.
A working concept for the Old Main, a lounge to be located on West Magnolia Avenue in Auburn, Ala.
A working concept for the Old Main, a lounge to be located on West Magnolia Avenue in Auburn, Ala.
The College Edge Overlay District in Auburn, Ala. CEDO areas are outlined in dark green.